Пожаловаться на объявление
Проект Детского сада на 300 мест - Москва
понедельник, 12 мая 2014 г.Параметры объявления
Город:
Москва
Тип предложения:
Предложение
Цена:
175 000 руб.
Текст объявления
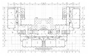
Эскиз, проектная и рабочая документация для проекта трехэтажного детского сада на 300 мест (12 групп по 25 человек в каждой) без бассейна.
Конструктивная схема — сборный монолитный каркас + стеновые панели.
Проект детского сада на 300 мест выполнен в соответствии с СаНПиН 2.4.1.3049-13.
Прошел государственную экспертизу, на данный момент ведется строительство.
В наличии все разделы (согласно 87 постановлению правительства РФ) форматы (DWG, PDF), смета, ТЗ, ТУ, заключение экспертизы.
Александр.
7-985-318-41-50
bigdomostroy@mail.ru
Конструктивная схема — сборный монолитный каркас + стеновые панели.
Проект детского сада на 300 мест выполнен в соответствии с СаНПиН 2.4.1.3049-13.
Прошел государственную экспертизу, на данный момент ведется строительство.
В наличии все разделы (согласно 87 постановлению правительства РФ) форматы (DWG, PDF), смета, ТЗ, ТУ, заключение экспертизы.
Александр.
7-985-318-41-50
bigdomostroy@mail.ru



